(仮称)井相田1丁目倉庫付事務所B棟 (ID:3227)
最終更新日:2026年04月17日
  • (仮称)井相田1丁目倉庫付事務所B棟
(仮称)井相田1丁目倉庫付事務所B棟
物件概要
物件名 (仮称)井相田1丁目倉庫付事務所B棟
所在地 福岡市博多区井相田1-8-8
交通アクセス1 西鉄バス板付七丁目停徒歩12分
交通アクセス2
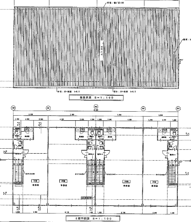
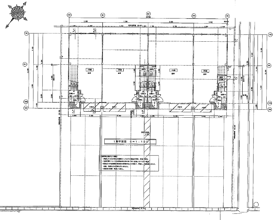
規模
構造 鉄骨造2階建
竣工 2026年8月
基準階面積
延床面積
空調 1F:無・2F:有
駐車場 前面駐車6~9台付
エレベーター
警備 機械警備:月額12,000円(税別)
1F:カラーコンクリート・2F:OAフロア
天井高
用途地域 準工業地域
シャッター 手動
セキュリティ 機械警備:月額12,000円(税別)
トイレ 1F:◎有・2F:◎有
備考1 定期借家契約5年
備考2 保証会社要加入:日本セーフティ(初回月額総額の100%・年間更新料月額総額の10%)
備考3
備考4
(仮称)井相田1丁目倉庫付事務所B棟(福岡市博多区井相田)は連棟タイプの倉庫付事務所です。1階(倉庫)/2階(事務所)・前面駐車6~9台付。OAフロア・機械警備完備。都市高速金の隈ランプまで車で5分。博多区物流エリア井相田に2026年8月誕生の新築賃貸倉庫付事務所。
階数 部屋名 面積 賃料+共益費 賃料 共益費 敷金 備考 詳細
(坪単価) (坪単価) (ヶ月)
1F 1-2階(1-2号室) 79.63坪
(263.24m²)
716,670円
(税込:788,337円)
716,670円 0円 4,300,020円 1階(倉庫)38.2坪/2階(事務所)41.43坪・前面駐車15台付・9月上旬入居可 詳細
@9,000円 @0円 6ヶ月
1F 1-2階(1号室) 32.71坪
(108.13m²)
294,390円
(税込:323,829円)
294,390円 0円 1,766,340円 1階(倉庫)15.12坪/2階(事務所)17.59坪・前面駐車6台付・9月上旬入居可 詳細
@9,000円 @0円 6ヶ月
1F 1-2階(2号室) 46.92坪
(155.11m²)
422,280円
(税込:464,508円)
422,280円 0円 2,533,680円 1階(倉庫)23.08坪/2階(事務所)23.84坪・前面駐車9台付・9月上旬入居可 詳細
@9,000円 @0円 6ヶ月
1F 1-2階(3-4号室) 78.40坪
(259.17m²)
705,600円
(税込:776,160円)
705,600円 0円 4,233,600円 1階(倉庫)38.2坪/2階(事務所)30.2坪・前面駐車12台付・9月上旬入居可 詳細
@9,000円 @0円 6ヶ月
1F 1-2階(3号室) 46.92坪
(155.11m²)
422,280円
(税込:464,508円)
422,280円 0円 2,533,680円 1階(倉庫)23.08坪/2階(事務所)23.84坪・前面駐車15台付・9月上旬入居可 詳細
@9,000円 @0円 6ヶ月
1F 1-2階(4号室) 31.48坪
(104.07m²)
283,320円
(税込:311,652円)
283,320円 0円 1,699,920円 1階(倉庫)15.12坪/2階(事務所)16.36坪・前面駐車6台付・9月上旬入居可 詳細
@9,000円 @0円 6ヶ月
この物件についてお問い合わせ
お電話でのお問い合わせ
092-707-2835
WEBでのお問い合わせ
WEBでは24時間お問い合わせを受け付けております。
原則翌営業日にご登録いただいた電話番号またはメールアドレスにご連絡させていただきます。
下記ボタンよりお気軽にお問い合わせください。

エスパネットとは

株式会社エスパネットは、福岡市エリア(天神・博多)を拠点に活動する不動産会社です。
福岡の賃貸オフィス・貸事務所の物件情報量はトップクラス。事業用不動産に特化し、地域に密着したサービスを展開しています。
顧客のニーズに応じた最適なオフィス空間の提供を通じて、ビジネスの成功に貢献しています。
地元不動産市場に深い知識を有し、常に最新の情報を駆使して顧客の期待を超えるサービスを提供することを目指しています。
お気軽にお問い合わせください!
WEBでは24時間お問い合わせを受け付けております。
原則翌営業日にご登録いただいた電話番号またはメールアドレスにご連絡させていただきます。
下記ボタンよりお気軽にお問い合わせください。

カテゴリ一覧

ページトップアイコン