(仮称)井相田1丁目倉庫付事務所A棟 (ID:3226)
最終更新日:2026年04月17日
  • (仮称)井相田1丁目倉庫付事務所A棟
(仮称)井相田1丁目倉庫付事務所A棟
物件概要
物件名 (仮称)井相田1丁目倉庫付事務所A棟
所在地 福岡市博多区井相田1-8-13
交通アクセス1 西鉄バス板付七丁目停徒歩12分
交通アクセス2
規模
構造 鉄骨造2階建
竣工 2026年8月
基準階面積
延床面積
空調 1F:無・2F:有
駐車場 前面駐車6台付
エレベーター
警備 機械警備:月額12,000円(税別)
1F:カラーコンクリート・2F:OAフロア
天井高
用途地域 準工業地域
シャッター 手動
セキュリティ 機械警備:月額12,000円(税別)
トイレ 1F:◎有・2F:◎有
備考1 定期借家契約5年
備考2 保証会社要加入:日本セーフティ(初回月額総額の100%・年間更新料月額総額の10%)
備考3
備考4
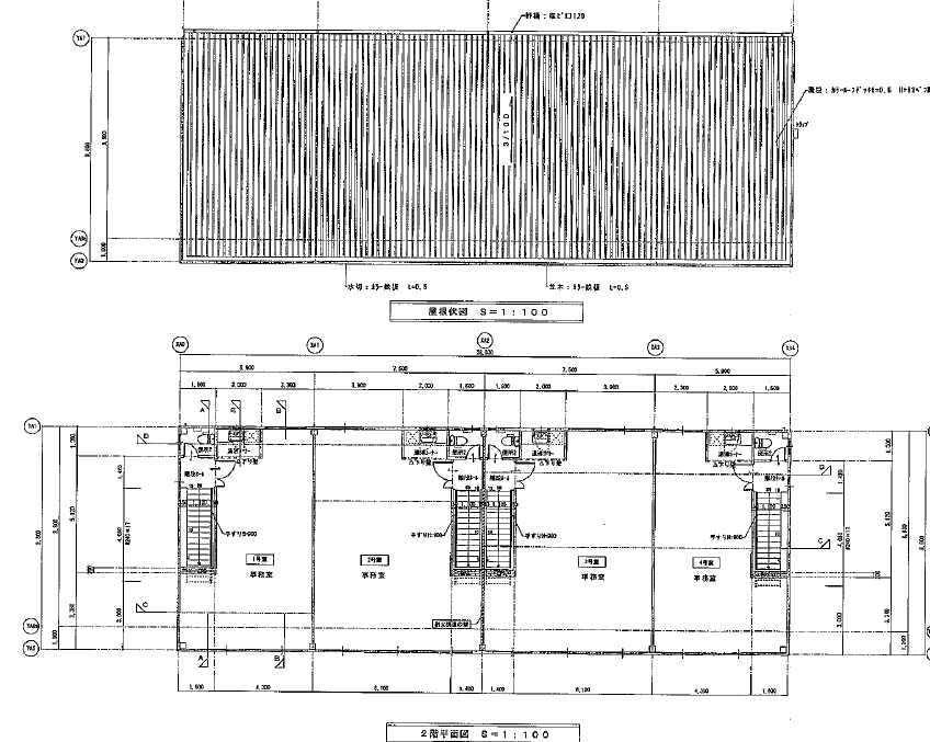
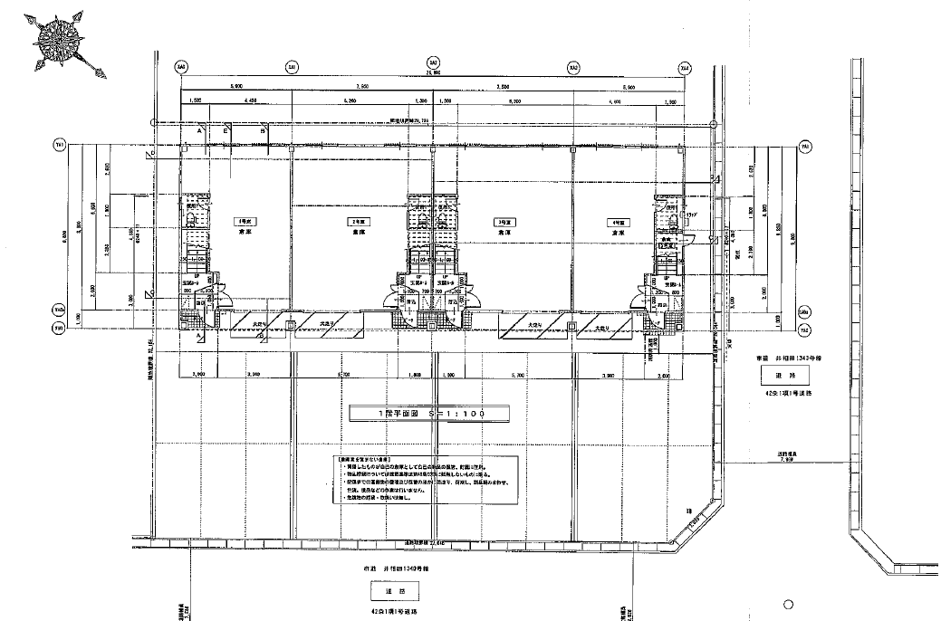
(仮称)井相田1丁目倉庫付事務所A棟(福岡市博多区井相田)は連棟タイプの倉庫付事務所です。1階(倉庫)/2階(事務所)・前面駐車6台付。OAフロア・機械警備完備。都市高速金の隈ランプまで車で5分。博多区物流エリア井相田に2026年8月誕生の新築賃貸倉庫付事務所。
階数 部屋名 面積 賃料+共益費 賃料 共益費 敷金 備考 詳細
(坪単価) (坪単価) (ヶ月)
1F 1-2階(1-2号室) 64.06坪
(211.77m²)
576,540円
(税込:634,194円)
576,540円 0円 3,459,240円 1階(倉庫)31.75坪/2階(事務所)32.31坪・前面駐車12台付・9月上旬入居可 詳細
@9,000円 @0円 6ヶ月
1F 1-2階(1号室) 27.26坪
(90.12m²)
245,340円
(税込:269,874円)
245,340円 0円 1,472,040円 1階(倉庫)13.59坪/2階(事務所)13.67坪・前面駐車6台付・9月上旬入居可 詳細
@9,000円 @0円 6ヶ月
1F 1-2階(2号室) 36.80坪
(121.65m²)
331,200円
(税込:364,320円)
331,200円 0円 1,987,200円 1階(倉庫)18.6坪/2階(事務所)18.64坪・前面駐車6台付・9月上旬入居可 詳細
@9,000円 @0円 6ヶ月
1F 1-2階(3-4号室) 63.03坪
(208.36m²)
567,270円
(税込:623,997円)
567,270円 0円 3,403,620円 1階(倉庫)31.28坪/2階(事務所)32.23坪・前面駐車12台付・9月上旬入居可 詳細
@9,000円 @0円 6ヶ月
1F 1-2階(3号室) 36.80坪
(121.65m²)
331,200円
(税込:364,320円)
331,200円 0円 1,987,200円 1階(倉庫)18.6坪/2階(事務所)18.64坪・前面駐車6台付・9月上旬入居可 詳細
@9,000円 @0円 6ヶ月
1F 1-2階(4号室) 26.23坪
(86.71m²)
236,070円
(税込:259,677円)
236,070円 0円 1,416,420円 1階(倉庫)12.64坪/2階(事務所)13.59坪・前面駐車6台付・9月上旬入居可 詳細
@9,000円 @0円 6ヶ月
この物件についてお問い合わせ
お電話でのお問い合わせ
092-707-2835
WEBでのお問い合わせ
WEBでは24時間お問い合わせを受け付けております。
原則翌営業日にご登録いただいた電話番号またはメールアドレスにご連絡させていただきます。
下記ボタンよりお気軽にお問い合わせください。

エスパネットとは

株式会社エスパネットは、福岡市エリア(天神・博多)を拠点に活動する不動産会社です。
福岡の賃貸オフィス・貸事務所の物件情報量はトップクラス。事業用不動産に特化し、地域に密着したサービスを展開しています。
顧客のニーズに応じた最適なオフィス空間の提供を通じて、ビジネスの成功に貢献しています。
地元不動産市場に深い知識を有し、常に最新の情報を駆使して顧客の期待を超えるサービスを提供することを目指しています。
お気軽にお問い合わせください!
WEBでは24時間お問い合わせを受け付けております。
原則翌営業日にご登録いただいた電話番号またはメールアドレスにご連絡させていただきます。
下記ボタンよりお気軽にお問い合わせください。

カテゴリ一覧

ページトップアイコン