物件概要
| 物件名 | オフィスパレア博多南Ⅰ |
|---|---|
| 所在地 | 福岡市博多区麦野2-16-26 |
| 交通アクセス1 | 西鉄バス板付七丁目停徒歩7分 |
| 交通アクセス2 | 西鉄天神大牟田線雑餉隈駅徒歩18分 |
| 規模 | |
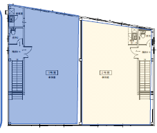
| 構造 | 鉄骨造2階建 |
| 竣工 | 2026年6月 |
| 基準階面積 | |
| 延床面積 | |
| 空調 | 1F:無・2F:有 |
| 駐車場 | 前面駐車9台付 |
| エレベーター | |
| 警備 | 機械警備:月額12,000円(税別) |
| 床 | 1F:カラーコンクリート・2F:OAフロア |
| 天井高 | |
| 用途地域 | 第一種住居地域 |
| シャッター | 手動 |
| セキュリティ | 機械警備:月額12,000円(税別) |
| トイレ | 1F:◎有・2F:◎有 |
| 備考1 | 普通借家契約5年 |
| 備考2 | 保証会社要加入:初回月額総額の100% |
| 備考3 | |
| 備考4 |



