物件概要
| 物件名 | FERIX和白 |
|---|---|
| 所在地 | 福岡市東区和白1-1 |
| 交通アクセス1 | 西鉄唐の原駅徒歩8分 |
| 交通アクセス2 | JR九産大前駅徒歩15分 |
| 規模 | |
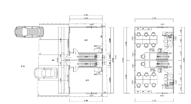
| 構造 | 木造2階建 |
| 竣工 | 2025年11月 |
| 基準階面積 | |
| 延床面積 | |
| 空調 | 1F:無・2F:有 |
| 駐車場 | 前面駐車2台付 |
| エレベーター | 1基 |
| 警備 | 無 |
| 床 | 1F:コンクリート・2F:一般 |
| 天井高 | |
| 用途地域 | 準工業地域 |
| シャッター | 手動 |
| セキュリティ | 無 |
| トイレ | 1F:◎有り・2F:◎有り |
| 備考1 | 普通借家契約2年 |
| 備考2 | 礼金:賃料の1ヶ月分 |
| 備考3 | 保証会社要加入:オリコフォレントインシュア(初回月額総額の100%) |
| 備考4 |






