仲畑2丁目貸工場 (ID:3003)
最終更新日:2026年03月25日
  • 仲畑2丁目貸工場
仲畑2丁目貸工場
物件概要
物件名 仲畑2丁目貸工場
所在地 大野城市仲畑2-11-22
交通アクセス1 西鉄バス金隈遺跡前停徒歩13分
交通アクセス2
規模
構造 鉄骨造2階建
竣工 1988年1月
基準階面積
延床面積
空調
駐車場 前面駐車6台付
エレベーター
警備
倉庫:カラーコンクリート・事務所:一般
天井高
用途地域 準工業地域
シャッター 手動
セキュリティ
トイレ ◎有り
備考1 普通借家契約2年
備考2 礼金:賃料の2ヶ月分
備考3 保証会社要加入
備考4
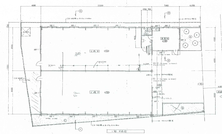
仲畑2丁目貸工場(大野城市仲畑)は1棟タイプの貸工場です。当該物件は物流エリア仲畑に位置し、九州自動車道大宰府ICまで車で12分の好アクセス。1階(工場・事務所)120.48坪/2階(事務所)9.01坪・前面駐車6台付。作業場、工場に最適。
階数 部屋名 面積 賃料+共益費 賃料 共益費 敷金 備考 詳細
(坪単価) (坪単価) (ヶ月)
1F 1-2階1棟 129.50坪
(428.10m²)
700,000円
(税込:770,000円)
700,000円 0円 5,600,000円 1階(工場・事務所)120.48坪/2階(事務所)9.01坪・前面駐車6台付・6月末退去 詳細
@5,405円 @0円 8ヶ月
この物件についてお問い合わせ
お電話でのお問い合わせ
092-707-2835
WEBでのお問い合わせ
WEBでは24時間お問い合わせを受け付けております。
原則翌営業日にご登録いただいた電話番号またはメールアドレスにご連絡させていただきます。
下記ボタンよりお気軽にお問い合わせください。

エスパネットとは

株式会社エスパネットは、福岡市エリア(天神・博多)を拠点に活動する不動産会社です。
福岡の賃貸オフィス・貸事務所の物件情報量はトップクラス。事業用不動産に特化し、地域に密着したサービスを展開しています。
顧客のニーズに応じた最適なオフィス空間の提供を通じて、ビジネスの成功に貢献しています。
地元不動産市場に深い知識を有し、常に最新の情報を駆使して顧客の期待を超えるサービスを提供することを目指しています。
お気軽にお問い合わせください!
WEBでは24時間お問い合わせを受け付けております。
原則翌営業日にご登録いただいた電話番号またはメールアドレスにご連絡させていただきます。
下記ボタンよりお気軽にお問い合わせください。

カテゴリ一覧

ページトップアイコン