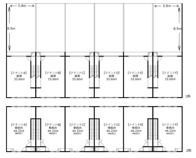
物件概要
| 物件名 | 筥松3丁目倉庫兼事務所 |
|---|---|
| 所在地 | 福岡市東区筥松3-10-22 |
| 交通アクセス1 | JR箱崎駅徒歩12分 |
| 交通アクセス2 | JR貝塚駅徒歩15分 |
| 規模 | |
| 構造 | 木造2階建 |
| 竣工 | 2026年5月 |
| 基準階面積 | |
| 延床面積 | |
| 空調 | 1F:無・2F:有 |
| 駐車場 | 前面駐車4台付 |
| エレベーター | |
| 警備 | 無 |
| 床 | 1F:カラーコンクリート・2F:一般 |
| 天井高 | |
| 用途地域 | 第一種住居地域 |
| シャッター | 手動 |
| セキュリティ | 無 |
| トイレ | 1F:無 ・2F:◎有 |
| 備考1 | 普通借家契約3年:更新事務手数料:30,000円(税別) |
| 備考2 | 防犯カメラ完備 |
| 備考3 | 保証会社要加入 |
| 備考4 |



