物件概要
| 物件名 | アバンダント井相田 |
|---|---|
| 所在地 | 福岡市博多区井相田2-2-5 |
| 交通アクセス1 | 西鉄バス板付中学校前停徒歩5分 |
| 交通アクセス2 | 西鉄天神大牟田線雑餉隈駅徒歩19分 |
| 規模 | |
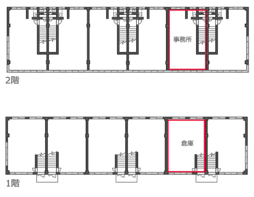
| 構造 | 鉄骨造2階建 |
| 竣工 | 1988年9月 |
| 基準階面積 | |
| 延床面積 | |
| 空調 | 1F:無・2F:有 |
| 駐車場 | 前面駐車5台付 |
| エレベーター | |
| 警備 | 無 |
| 床 | 1F:カラーコンクリート・2F:一般 |
| 天井高 | |
| 用途地域 | 準工業地域 |
| シャッター | 手動 |
| セキュリティ | 無 |
| トイレ | 1F:◎無・2F:◎有 |
| 備考1 | 普通借家契約2年 |
| 備考2 | 保証会社要加入:ふれんずサポート保証 |
| 備考3 | |
| 備考4 |
