KMGビル:店舗 (ID:3084)
最終更新日:2026年03月05日
  • KMGビル:店舗
KMGビル:店舗
物件概要
物件名 KMGビル:店舗
所在地 福岡市中央区薬院3-2-23
交通アクセス1 西鉄天神大牟田線薬院駅徒歩3分
交通アクセス2 地下鉄薬院駅徒歩3分
規模 地上8階建
構造 鉄骨造
竣工 2021年2月
基準階面積 296坪
延床面積 3149坪
空調 個別
駐車場 機械式53台
エレベーター 3基+荷搬用1基
警備 機械警備
OAフロア
天井高 2800㎜
備考1
備考2
備考3
備考4
KMGビル(中央区薬院)の最寄り駅は西鉄天神大牟田線「薬院駅」・地下鉄七隈線「薬院駅」。当該物件は城南線沿い、城東橋西交差点角地に位置しています。個別空調、OAフロア、機械式53台の駐車場、機械警備完備。薬院エリア屈指のハイスペック賃貸オフィスビル。
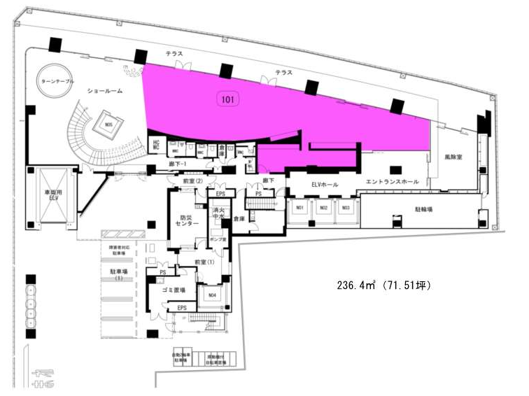
階数 部屋名 面積 賃料+共益費 賃料 共益費 敷金 備考 詳細
(坪単価) (坪単価) (ヶ月)
1F 1 71.51坪
(236.40m²)
賃料ご相談 カフェ店舗跡・引き渡し状態相談・2026年5月1日入居可 詳細
この物件についてお問い合わせ
お電話でのお問い合わせ
092-707-2835
WEBでのお問い合わせ
WEBでは24時間お問い合わせを受け付けております。
原則翌営業日にご登録いただいた電話番号またはメールアドレスにご連絡させていただきます。
下記ボタンよりお気軽にお問い合わせください。

エスパネットとは

株式会社エスパネットは、福岡市エリア(天神・博多)を拠点に活動する不動産会社です。
福岡の賃貸オフィス・貸事務所の物件情報量はトップクラス。事業用不動産に特化し、地域に密着したサービスを展開しています。
顧客のニーズに応じた最適なオフィス空間の提供を通じて、ビジネスの成功に貢献しています。
地元不動産市場に深い知識を有し、常に最新の情報を駆使して顧客の期待を超えるサービスを提供することを目指しています。
お気軽にお問い合わせください!
WEBでは24時間お問い合わせを受け付けております。
原則翌営業日にご登録いただいた電話番号またはメールアドレスにご連絡させていただきます。
下記ボタンよりお気軽にお問い合わせください。

カテゴリ一覧

ページトップアイコン