フェリス大橋 (ID:3080)
最終更新日:2026年05月25日
  • フェリス大橋
フェリス大橋
物件概要
物件名 フェリス大橋
所在地 福岡市南区大橋1-27-3
交通アクセス1 西鉄天神大牟田線 大橋駅 徒歩5分
交通アクセス2
規模 地上8階建
構造 鉄筋コンクリート造
竣工 2001年3月
基準階面積
延床面積
空調
駐車場
エレベーター 1基
警備
天井高
備考1 保証会社要加入
備考2
備考3
備考4
フェリス大橋(南区大橋)の最寄り駅は、西鉄天神大牟田線「大橋駅」です。大橋駅徒歩5分の好立地に位置する、1・2階が賃貸テナント区画、3階から賃貸マンションになっています。
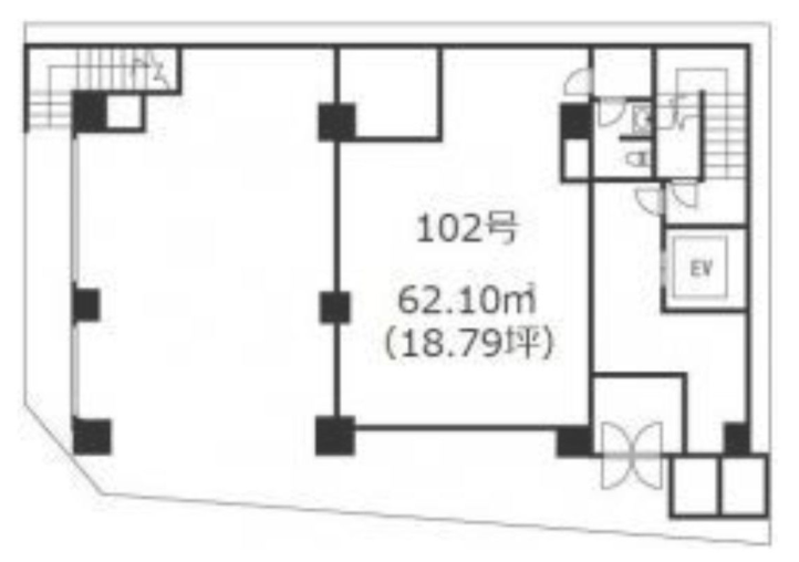
階数 部屋名 面積 賃料+共益費 賃料 共益費 敷金 備考 詳細
(坪単価) (坪単価) (ヶ月)
1F 2 18.78坪
(62.08m²)
250,000円
(税込:275,000円)
250,000円 0円 1,500,000円 内装事務所仕上げ 詳細
@13,312円 @0円 6ヶ月
この物件についてお問い合わせ
お電話でのお問い合わせ
092-707-2835
WEBでのお問い合わせ
WEBでは24時間お問い合わせを受け付けております。
原則翌営業日にご登録いただいた電話番号またはメールアドレスにご連絡させていただきます。
下記ボタンよりお気軽にお問い合わせください。

エスパネットとは

株式会社エスパネットは、福岡市エリア(天神・博多)を拠点に活動する不動産会社です。
福岡の賃貸オフィス・貸事務所の物件情報量はトップクラス。事業用不動産に特化し、地域に密着したサービスを展開しています。
顧客のニーズに応じた最適なオフィス空間の提供を通じて、ビジネスの成功に貢献しています。
地元不動産市場に深い知識を有し、常に最新の情報を駆使して顧客の期待を超えるサービスを提供することを目指しています。
お気軽にお問い合わせください!
WEBでは24時間お問い合わせを受け付けております。
原則翌営業日にご登録いただいた電話番号またはメールアドレスにご連絡させていただきます。
下記ボタンよりお気軽にお問い合わせください。

カテゴリ一覧

ページトップアイコン