ラクレイス千代県庁口 (ID:2976)
最終更新日:2025年12月02日
  • ラクレイス千代県庁口
ラクレイス千代県庁口
物件概要
物件名 ラクレイス千代県庁口
所在地 福岡市博多区千代4-1-33
交通アクセス1 地下鉄千代県庁口駅徒歩1分
交通アクセス2
規模 地上10階建
構造 鉄筋コンクリート造
竣工 2008年2月
基準階面積
延床面積 2594坪
空調
駐車場 機械式・平面式
エレベーター
警備 機械警備
スケルトン
天井高
備考1 スケルトン渡し
備考2
備考3
備考4
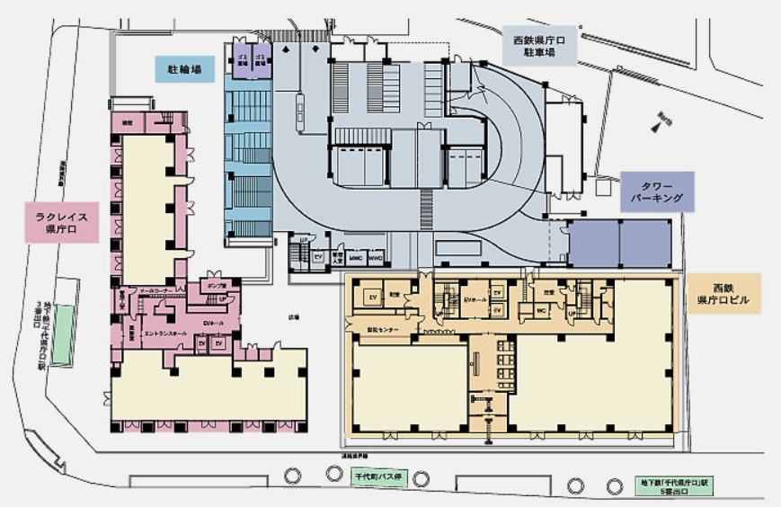
ラクレイス千代県庁口(博多区千代)の最寄駅は地下鉄箱崎線「千代県庁口駅」。当該物件は千代交差点角地、地下鉄千代県庁口3番昇降口目の前の好立地物件。地元優良企業所有のラクレイスシリーズの賃貸テナントです。
階数 部屋名 面積 賃料+共益費 賃料 共益費 敷金 備考 詳細
(坪単価) (坪単価) (ヶ月)
1F 1 9.73坪
(32.17m²)
126,490円
(税込:139,139円)
126,490円 0円 1,517,880円 クリーニング店跡・2026年4月1日入居可 詳細
@13,000円 @0円 12ヶ月
この物件についてお問い合わせ
お電話でのお問い合わせ
092-707-2835
WEBでのお問い合わせ
WEBでは24時間お問い合わせを受け付けております。
原則翌営業日にご登録いただいた電話番号またはメールアドレスにご連絡させていただきます。
下記ボタンよりお気軽にお問い合わせください。

エスパネットとは

株式会社エスパネットは、福岡市エリア(天神・博多)を拠点に活動する不動産会社です。
福岡の賃貸オフィス・貸事務所の物件情報量はトップクラス。事業用不動産に特化し、地域に密着したサービスを展開しています。
顧客のニーズに応じた最適なオフィス空間の提供を通じて、ビジネスの成功に貢献しています。
地元不動産市場に深い知識を有し、常に最新の情報を駆使して顧客の期待を超えるサービスを提供することを目指しています。
お気軽にお問い合わせください!
WEBでは24時間お問い合わせを受け付けております。
原則翌営業日にご登録いただいた電話番号またはメールアドレスにご連絡させていただきます。
下記ボタンよりお気軽にお問い合わせください。

カテゴリ一覧

ページトップアイコン