キャナルシティ・ビジネスセンタービル:店舗 (ID:2874)
最終更新日:2026年03月16日
  • キャナルシティ・ビジネスセンタービル:店舗
キャナルシティ・ビジネスセンタービル:店舗
物件概要
物件名 キャナルシティ・ビジネスセンタービル:店舗
所在地 福岡市博多区住吉1-2-25
交通アクセス1 地下鉄櫛田神社前駅徒歩2分
交通アクセス2 JR博多駅徒歩11分
規模 地上10階地下2階建
構造 鉄骨鉄筋コンクリート造
竣工 1996年4月
基準階面積 675坪
延床面積 9308坪
空調 セントラル
駐車場 自走式
エレベーター 5基+荷物用1基
警備 機械・有人式併用警備
OAフロア
天井高 3000mm
備考1 スケルトン渡し
備考2 駐車場:月額25,000円(税別)
備考3 正面玄関開放時間:7:00~22:00(平日・土日祝)
備考4
キャナルシティ・ビジネスセンタービル(博多区住吉)の最寄り駅は地下鉄空港線「櫛田神社前駅」。当該物件は商業施設・映画館・アミューズメント施設・高級ホテル等が集結する商業施設「キャナルシティ博多」の東の一角を占める大型賃貸オフィスビルです。
階数 部屋名 面積 賃料+共益費 賃料 共益費 敷金 備考 詳細
(坪単価) (坪単価) (ヶ月)
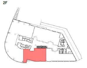
2F 1 104.50坪
(345.46m²)
1,881,000円
(税込:2,069,100円)
1,881,000円 0円 22,572,000円 先行有・天井高3000㎜・2027年3月上旬入居可 詳細
@18,000円 @0円 12ヶ月
この物件についてお問い合わせ
お電話でのお問い合わせ
092-707-2835
WEBでのお問い合わせ
WEBでは24時間お問い合わせを受け付けております。
原則翌営業日にご登録いただいた電話番号またはメールアドレスにご連絡させていただきます。
下記ボタンよりお気軽にお問い合わせください。

エスパネットとは

株式会社エスパネットは、福岡市エリア(天神・博多)を拠点に活動する不動産会社です。
福岡の賃貸オフィス・貸事務所の物件情報量はトップクラス。事業用不動産に特化し、地域に密着したサービスを展開しています。
顧客のニーズに応じた最適なオフィス空間の提供を通じて、ビジネスの成功に貢献しています。
地元不動産市場に深い知識を有し、常に最新の情報を駆使して顧客の期待を超えるサービスを提供することを目指しています。
お気軽にお問い合わせください!
WEBでは24時間お問い合わせを受け付けております。
原則翌営業日にご登録いただいた電話番号またはメールアドレスにご連絡させていただきます。
下記ボタンよりお気軽にお問い合わせください。

カテゴリ一覧

ページトップアイコン