物件概要
| 物件名 | LAMP須崎 |
|---|---|
| 所在地 | 福岡市博多区須崎町5-17 |
| 交通アクセス1 | 地下鉄中洲川端駅徒歩5分 |
| 交通アクセス2 | |
| 規模 | 地上10階建 |
| 構造 | 鉄筋コンクリート造 |
| 竣工 | 2022年8月 |
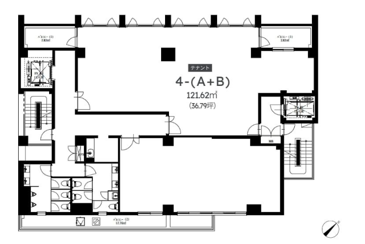
| 基準階面積 | |
| 延床面積 | |
| 空調 | 個別 |
| 駐車場 | 機械式 |
| エレベーター | 2基 |
| 警備 | 機械警備 |
| 床 | OAフロア |
| 天井高 | |
| 備考1 | 1F~5F 店舗・事務所フロア |
| 備考2 | 1F スケルトン、2F~5F 事務所仕上げ |
| 備考3 | 駐車場:月額20,000円(税別) |
| 備考4 | 保証会社要加入:シーアイゼット保証 |






