LA博多(エルエーハカタ) (ID:407)
最終更新日:2026年01月20日
  • LA博多(エルエーハカタ)
LA博多(エルエーハカタ)
物件概要
物件名 LA博多(エルエーハカタ)
所在地 福岡市博多区中洲5-6-10
交通アクセス1 地下鉄中洲川端駅徒歩3分
交通アクセス2
規模 地上10階建
構造 鉄骨造
竣工 2020年2月
基準階面積
延床面積
空調 個別
駐車場
エレベーター 1基
警備 機械警備
OAフロア
天井高 2800mm
備考1 定期借家契約5年
備考2 保証会社要加入
備考3
備考4
LA博多(博多区中洲)の最寄り駅は地下鉄空港線「中洲川端駅」。当該物件はホテルオークラそば、中洲中央通りに面しています。上層階はスモールタイプオフィスフロアになっています。OAフロア・屋上テラス完備。天井高2800㎜の開放的なオフィス空間。2020年竣工のハイスペック賃貸オフィス。
階数 部屋名 面積 賃料+共益費 賃料 共益費 敷金 備考 詳細
(坪単価) (坪単価) (ヶ月)
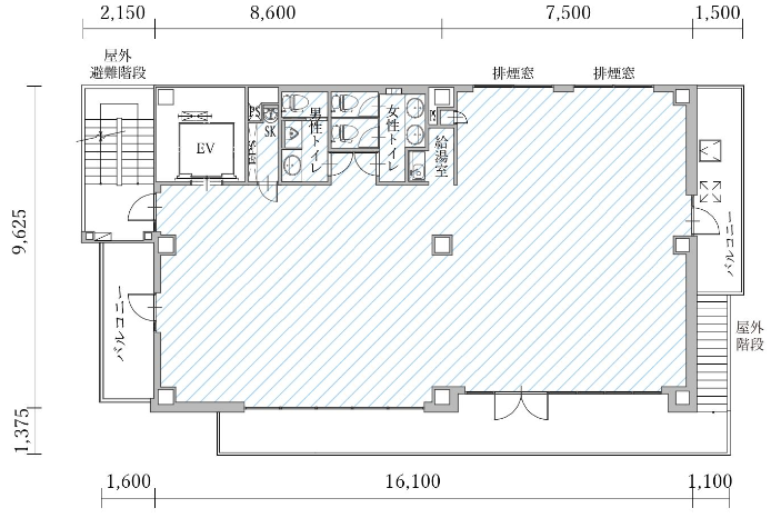
3F 1フロア 50.05坪
(165.45m²)
900,900円
(税込:990,990円)
750,750円 150,150円 9,009,000円 詳細
@15,000円 @3,000円 12ヶ月
この物件についてお問い合わせ
お電話でのお問い合わせ
092-707-2835
WEBでのお問い合わせ
WEBでは24時間お問い合わせを受け付けております。
原則翌営業日にご登録いただいた電話番号またはメールアドレスにご連絡させていただきます。
下記ボタンよりお気軽にお問い合わせください。

エスパネットとは

株式会社エスパネットは、福岡市エリア(天神・博多)を拠点に活動する不動産会社です。
福岡の賃貸オフィス・貸事務所の物件情報量はトップクラス。事業用不動産に特化し、地域に密着したサービスを展開しています。
顧客のニーズに応じた最適なオフィス空間の提供を通じて、ビジネスの成功に貢献しています。
地元不動産市場に深い知識を有し、常に最新の情報を駆使して顧客の期待を超えるサービスを提供することを目指しています。
お気軽にお問い合わせください!
WEBでは24時間お問い合わせを受け付けております。
原則翌営業日にご登録いただいた電話番号またはメールアドレスにご連絡させていただきます。
下記ボタンよりお気軽にお問い合わせください。

カテゴリ一覧

ページトップアイコン