• 永島ビル
永島ビル
物件概要
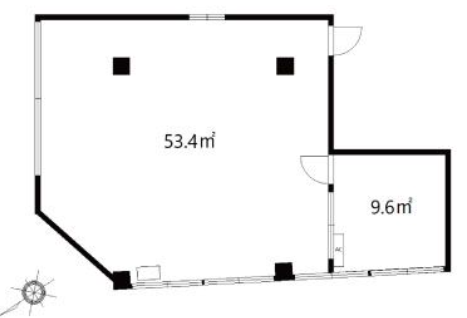
坪数 19.06坪  (63.01m²)
階数 4F
部屋名 2
賃料条件
賃料合計 209,000円  (税込:229,900円)
賃料 190,000円 (@9,969円)
共益費 19,000円 (@997円)
敷金 380,000円  (2ヶ月)
備考
ビル概要
物件名 永島ビル
所在地 福岡市中央区天神4-7-18
交通アクセス1 地下鉄天神駅徒歩7分
交通アクセス2 地下鉄中洲川端徒歩11分
規模 地上5階地下1階建
永島ビル(中央区天神)の最寄駅は地下鉄空港線「天神駅」。当該物件は弁天橋交差点至近、天神北エリア那珂川沿い角地に位置しています。静かな環境のレトロ感のある賃貸テナントビル。
ビル概要
構造 鉄筋コンクリート造
竣工 1962年3月
基準階面積
延床面積
空調
駐車場
エレベーター
警備
一般
天井高
備考1 スケルトン渡し
備考2 エアコンサービス設置品
備考3 定期借家契約3年
備考4 礼金:賃料の1ヶ月分
この物件についてお問い合わせ
お電話でのお問い合わせ
092-707-2835
WEBでのお問い合わせ
WEBでは24時間お問い合わせを受け付けております。
原則翌営業日にご登録いただいた電話番号またはメールアドレスにご連絡させていただきます。
下記ボタンよりお気軽にお問い合わせください。

エスパネットとは

株式会社エスパネットは、福岡市エリア(天神・博多)を拠点に活動する不動産会社です。
福岡の賃貸オフィス・貸事務所の物件情報量はトップクラス。事業用不動産に特化し、地域に密着したサービスを展開しています。
顧客のニーズに応じた最適なオフィス空間の提供を通じて、ビジネスの成功に貢献しています。
地元不動産市場に深い知識を有し、常に最新の情報を駆使して顧客の期待を超えるサービスを提供することを目指しています。
お気軽にお問い合わせください!
WEBでは24時間お問い合わせを受け付けております。
原則翌営業日にご登録いただいた電話番号またはメールアドレスにご連絡させていただきます。
下記ボタンよりお気軽にお問い合わせください。

カテゴリ一覧

ページトップアイコン