物件概要
| 物件名 | 博多駅前シティビル |
|---|---|
| 所在地 | 福岡市博多区博多駅前1-9-3 |
| 交通アクセス1 | JR博多駅徒歩6分 |
| 交通アクセス2 | 地下鉄祇園駅徒歩2分 |
| 規模 | 地上14階地下1階建 |
| 構造 | 鉄骨鉄筋コンクリート造 |
| 竣工 | 1983年5月 |
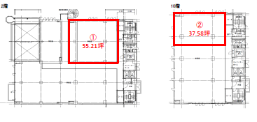
| 基準階面積 | 208坪 |
| 延床面積 | 2712坪 |
| 空調 | 個別 |
| 駐車場 | 機械式60台 |
| エレベーター | 2基+荷物用1基 |
| 警備 | 機械警備 |
| 床 | OAフロア(50mm) |
| 天井高 | 2350mm |
| 備考1 | 2013年リニューアル |
| 備考2 | 駐車場:月額25,000円(税別)敷金3ヶ月 |
| 備考3 | 正面玄関開放時間:7:00~19:00(平日・土日祝) |
| 備考4 |

